1 .. 26 27 28 29 30 31 32 33 34 35 36 .. 50
Página 31 de 50 • DAU 12/076 • Edición C
 
 
 
 
 
 
Figura
5.21a:
Sección
horizontal
por
hueco.
 
Jamba
cerámica
y
vierteaguas pétreo.
Entrega a hoja exterior ≥ 20 mm.
 
 
Figura
5.21b:
Sección
horizontal
por
hueco.
 
Ladrillo
de
remate
en
jamba y vierteaguas de chapa.
Entrega a hoja exterior ≥ 20 mm.
 
 
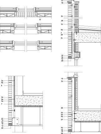
Figura 5.19:
 
Dintel
de
hueco
y
coronación.
 
Hoja
exterior
e interior
ancladas a perfil metálico tubular resistente.
 
 
 
 
Figura
5.21c:
Sección
horizontal
por
hueco.
 
Jamba
mediante
pieza
especial.
 
 
Figura
5.20:
Arranque
sobre
cargadero
fijado
a
perfil
metálico
resistente.
 
 
Figura 5.22:
Arranque sobre cargadero fijado a pilar mediante ángulos.